
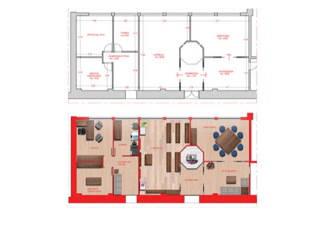
Nell’ottobre 2023 i Frati minori del Convento di San Biagio, mi chiesero di allestire alcune sale della struttura da destinare a locali di rappresentanza e di preghiera. La necessità dei frati era quella di avere una stanza per le riunioni del Direttorio, una cappella liturgica e delle altre sale di servizio adibite ad uffici ed archivio. Durante i rilievi mi trovai di fronte due grandi sale pavimentate a scacchiera, illuminate da grandi finestre scorrevoli. Se da un lato le sale permettevano un’ampia flessibilità progettuale, dall’altro, i vincoli di porte e finestre diventavano elementi forti da rispettare. Nella fase di studio progettuale, ho suddiviso la prima sala staccando un piccolo spazio di forma ottagonale quale disimpegno di accesso al Direttorio e alla realizzanda cappella liturgica. Nel disimpegno ottagonale è stato collocato il simulacro di San Francesco, le sale direzionali sono state arredate in modo semplice e funzionale rispettando la dottrina francescana. Quanto alla cappella liturgica, per mantenere uno stile sobrio e semplice, ho ritenuto di creare soltanto delle scansioni verticali a tutt’altezza nella parete di fondo, quali nicchie nelle quali collocare il Crocifisso, la Madonna ed il Santissimo. Il progetto illuminotecnico ha permesso un gioco di luci molto semplice e pulito su delle superfici chiare, evidenziate soltanto da un leggero movimento di volumi La seconda sala è stata suddivisa creando un ufficio, un archivio e uno spazio operativo destinato alle attrezzature, il tutto tenendo conto degli arredi esistenti in relazione alle grandi aperture scorrevoli. Le tramezzature sono state realizzate con pannelli in cartongesso, isolate da lana di roccia per garantire una fono assorbenza adeguata, montate su una struttura di profili zincati ancorati al pavimento ed al soffitto. Per coprire l’esistente pavimentazione a scacchiera, sia nel disimpegno, sia nella cappella, è stato posato un nuovo pavimento in sovrapposizione utilizzando una tipologia di Parquet tipo Clap, che ha permesso di uniformare le nuove superfici calpestabili creando un ambiente più accogliente. Gli infissi in alluminio sono stati schermati da tendaggi chiari e le controsoffittature nei vari ambienti hanno contribuito al gioco dei volumi e delle luci senza particolari forzature, creando degli spazi di preghiera e di accoglienza tutta francescana.